8
Plot , Grundy Fold Farm, Chorley Old Road, Bolton, BL6
£650,000
- bedrooms, - bathrooms, - receptions
Summary:
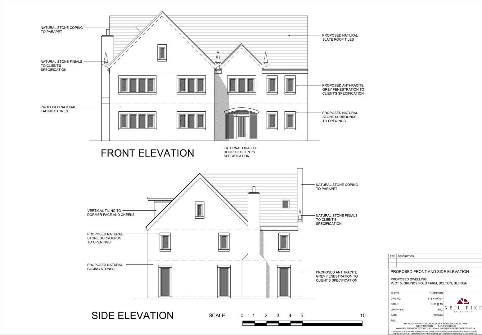
If you have been searching in vain for your ultimate forever home that offers spectacular views luxury accommodation, extensive parking, significant plot with beautiful private landscaped grounds, all finished to the most exacting of standards throughout? then this may be the one for you. This is a fantastic opportunity for a purchaser to have a stunning and bespoke luxury home built for them in one of Bolton's most prestigious developments. Standing within its own private grounds within a spectacular development of only four other homes, this individually designed new build detached home is available to buy as a plot and potentially for the developer to build your home for you to your own specifications. This beautiful property is planned for a 5 bedroom 5 bathroom home that will be built to the highest of standards But the plans are fluid and can be redesigned internally to accommodate up to 7 bedrooms. The property will be built using ultra-modern construction techniques this will be a highly energy efficient home with a low carbon footprint. The fabulous, well-proportioned accommodation provides around 4780 square feet of living space that is ideally suited to modern lifestyles, situated within a large private plot of approximately 0.8 acres The location is ideally positioned on the edge of open countryside yet is within easy access to a host of amenities and well placed for major transport links offering easy access into Manchester and across the North West. This is a unique opportunity to purchase a new build home that you will be involved in the build process from the start to finish and is unlikely to be on the market for very long. As such, an early enquiry is strongly advised to avoid disappointment.
Key Features:
- Large Plot with Planning
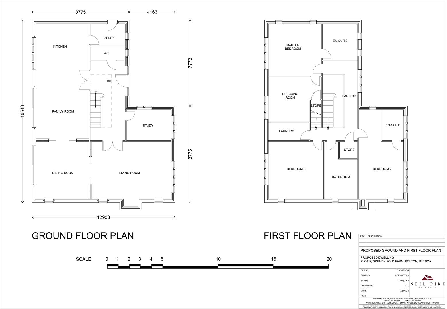
- Executive Detached property with c4780 sqft of Accommodation
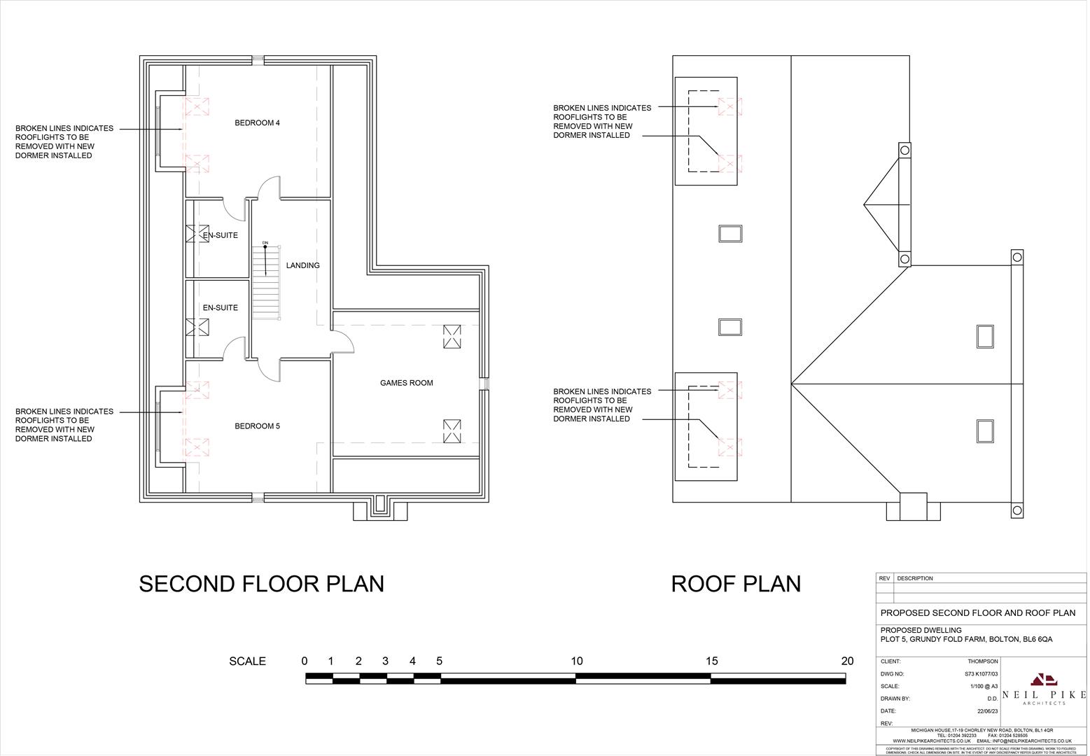
- Planned For 5 Bedrooms and 5 Bathrooms
- 4 Reception Rooms
- Approx Build Cost will be Around £900,000 - 1m
- Appointment to View Essential
- Approx 5 Acres off Further Land May be Available by Separate Negotiation.
Full Details:
Viewing & Disclaimer:
Please contact us on 01204 329990 OPT 1 if you wish to arrange a viewing appointment for this property, or require further information.
Redman Casey - BL6 endeavour to maintain accurate depictions of properties in Virtual Tours, Floor Plans and descriptions, however, these are intended only as a guide and purchasers must satisfy themselves by personal inspection.
