47
Glenburn, Foxholes Road, Horwich, Bolton, BL6
OIRO £950,000
5 bedrooms, 4 bathrooms, 3 receptions
Summary:
A superb extended and deceptively spacious detached family residence located in the highly sought after area of Foxholes Road and offering fantastic access to the surrounding countryside. The property sits to the front and side of a substantial plot (0.8 acres approx) which includes extensive lawned areas, mature woodland with a stunning pond and stream with waterfall. The internal layout offers deceptively spacious living accommodation (not very apparent from the front view) with flexibility to accommodate a growing family with up to 6 bedrooms although the property is currently used as a 4/5 bedroom with a large office/games room.This property offers 4 reception rooms, large fitted kitchen diner plus utility. Stunning orangery overlooking the rear gardens with pond and waterfall.The large master suite is equipped with a fitted walk in wardrobe and hidden en-suite and dressing room, family bathroom - plus in bedroom two a fitted shower and sink. The games room offers potential to be split into separate bedrooms if required but equally provides flexibility to the living space. In summary, all the rooms are of generous proportions. Outside there are parking provisions for up to 6 cars plus a large double garage. The space occupied by the property affords opportunity to extend further sideways and possibly backwards subject to planning consent. Ideally located for access to Rivington countryside, this fabulous property must be viewed to fully appreciate the size and location on offer
Key Features:
- Deceptively Spacious Detached
- 4/6 Bedrooms
- 4 Reception Rooms
- Large Plot with Stream , Waterfall and Pond
- Parking for 4 Cars Plus Double Garage
- Countryside on the Doorstep
- Master Suite with Ensuite and Walk in Wardrobe
- Superb Location
- EPC Rating D
- Council Tax Band F
Full Details:
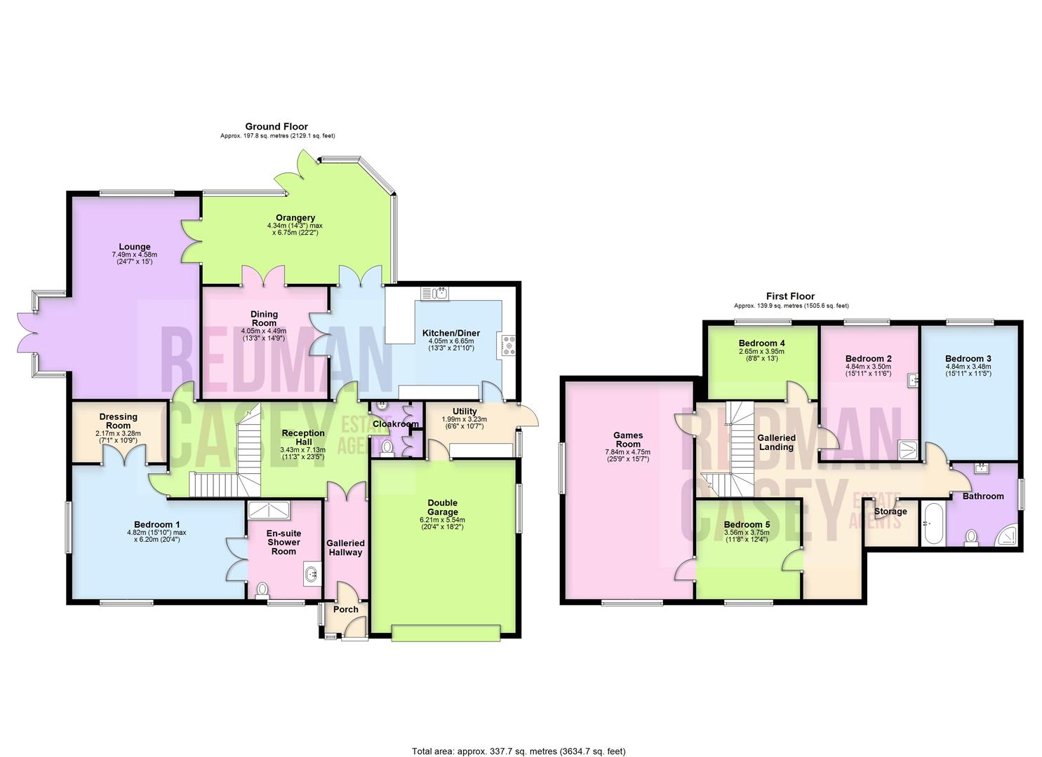
Porch
UPVC double glazed window to front, uPVC double glazed entrance door, door to:
Galleried Hallway
Radiator, laminate flooring, dado rail, double doors to
Reception Hall (3.43m x 7.13m (11'3" x 23'5"))
Superb spacious Reception hall offering seating area along with return staircase leading to first floor, door to:
Cloakroom
Fitted with two piece modern white suite comprising, pedestal wash hand basin with tiled splashback and low-level WC, two built-in double storage cupboard,
Kitchen/Diner (4.05m x 6.65m (13'3" x 21'10"))
Fitted with a matching cream fronted base and eye level units with underlighting, drawers and contrasting round edged worktops, wine rack, 1+1/2 bowl stainless steel sink unit with single drainer and mixer tap with tiled splashbacks, integrated dishwasher, integrated fridge and freezer , extra space for 'American' style fridge freezer, built-in eye level electric fan assisted double oven, five ring gas hob with extractor hood over, radiator, ceramic tiled flooring, access to Orangery and door to:
Utility (1.99m x 3.23m (6'6" x 10'7"))
Fitted with a matching range of base and eye level units, plumbing for washing machine, space for fridge/freezer, window to side, radiator, ceramic tiled flooring, uPVC double glazed side door to garden, door to garage :
Dining Room (4.05m x 4.49m (13'3" x 14'9"))
Radiator, two wall lights, coving to ceiling,
Orangery (4.34m x 6.75m (14'3" x 22'2"))
Half brick and upvc construction with feature lantern roof upvc windows to rear and side, overlooking the substantial rear gardens, three double radiators, uPVC double glazed French doors to garden
Lounge (7.49m x 4.58m (24'7" x 15'0"))
Offering a stunning view of the side and rear gardens, patio doors leading to the side garden two radiators, coving to ceiling,
Bedroom 1 (4.82m x 6.20m (15'10" x 20'4"))
Master Suite with uPVC double glazed window to side, uPVC double glazed window to front, fitted bedroom suite with a range of wardrobes comprising two fitted double wardrobes with hanging rails and shelving, double radiator, door to:
Walk in Wardrobe (2.17m x 3.28m (7'1" x 10'9"))
Walk in wardrobe with a selection of rails and shelving
En-suite Shower Room
Fitted with three piece modern white suite with comprising, tiled double shower enclosure with rainfall shower over, wash hand basin set on unit with cupboards under and mixer tap, low-level WC and top heated towel rails, extractor fan, wall mounted mirror, shaver point, full height ceramic tiling to all walls, uPVC frosted double glazed window to front, ceramic tiled flooring.
Galleried Landing
Radiator, door to:
Games Room (7.84m x 4.75m (25'9" x 15'7"))
UPVC double glazed window to side, uPVC double glazed window to front, two double radiators, potential to convert to 2 further bedrooms should the need arise, access to generous eaves storage areas
Bathroom
Fitted with four piece coloured suite with comprising, deep panelled bath, pedestal wash hand basin with mixer tap, shower enclosure with power shower over and low-level WC, full height ceramic tiling to all walls, wall mounted mirror, shaver point, uPVC frosted double glazed window to side, radiator, wooden flooring.
Bedroom 2 (4.84m x 3.50m (15'11" x 11'6"))
UPVC double glazed dormer window to rear, fitted triple wardrobe(s), fitted matching dressing table and drawers, radiator with shower enclosure with power shower over and pedestal wash hand basin with mixer tap.
Bedroom 3 (4.84m x 3.48m (15'11" x 11'5"))
UPVC double glazed dormer window to rear, fitted bedroom suite with a range of wardrobes comprising two fitted double with hanging rails and shelving, fitted matching cupboards, dressing table and drawers, radiator.
Bedroom 4 (2.65m x 3.95m (8'8" x 13'0"))
UPVC double glazed dormer window to rear, radiator.
Bedroom 5 (3.56m x 3.75m (11'8" x 12'4"))
Upvc dormer window to front, radiator, door to landing
Storage
Large built-in double storage cupboard.
Outside
Front garden, enclosed by dwarf brick wall and mature hedge to front and sides, extensive tarmac driveway to the front leading to garage and with car parking space for 6-8 cars with mature flower and shrub borders.
Side enclosed by mature hedge to front, rear and sides, paved sun patio with lawned area and mature flower and shrub borders beds.
Rear gardens, enclosed by stone wall and mature hedge to rear and sides, large paved sun patio with lawned area and mature flower and shrub borders, ornamental pond with waterfall, paved pathway, timber garden shed.
Double Garage
Integral double garage with power and light connected, wall mounted gas combination boiler serving heating system and domestic hot water, uPVC frosted double glazed window to side, remote-controlled electric up and over door.
Viewing & Disclaimer:
Please contact us on 01204 329990 OPT 1 if you wish to arrange a viewing appointment for this property, or require further information.
Energy Performance Certificate
Click here to view the Energy Efficiency Rating and Environmental Impact Rating for this property.
Redman Casey - BL6 endeavour to maintain accurate depictions of properties in Virtual Tours, Floor Plans and descriptions, however, these are intended only as a guide and purchasers must satisfy themselves by personal inspection.
