16
Station Road, Blackrod, Bolton, BL6
OIRO £160,000
3 bedrooms, 1 bathrooms, 2 receptions
Summary:
**REDUCED**NO CHAIN** Ideally located for access to local amenities and transport networks for motorway and main line railway links to Manchester and beyond this deceptively spacious mid terraced property offers excellent accommodation which comprises Vestibule, lounge, dining room, kitchen. To the first floor there are two double bedrooms and a third single bedroom and a large bathroom fitted with a 4 piece suite. Outside there is a small garden to the front and a courtyard garden to the rear along with workshop. The property is offered for sale with no onward chain and vacant possession. Viewing is essential to appreciate all that is on offer.
Key Features:
- No Chain
- 2 Reception Rooms
- Spacious 3 Bedroomed Terraced House
- Useful Workshop to Rear
- Potential to Improve
Full Details:
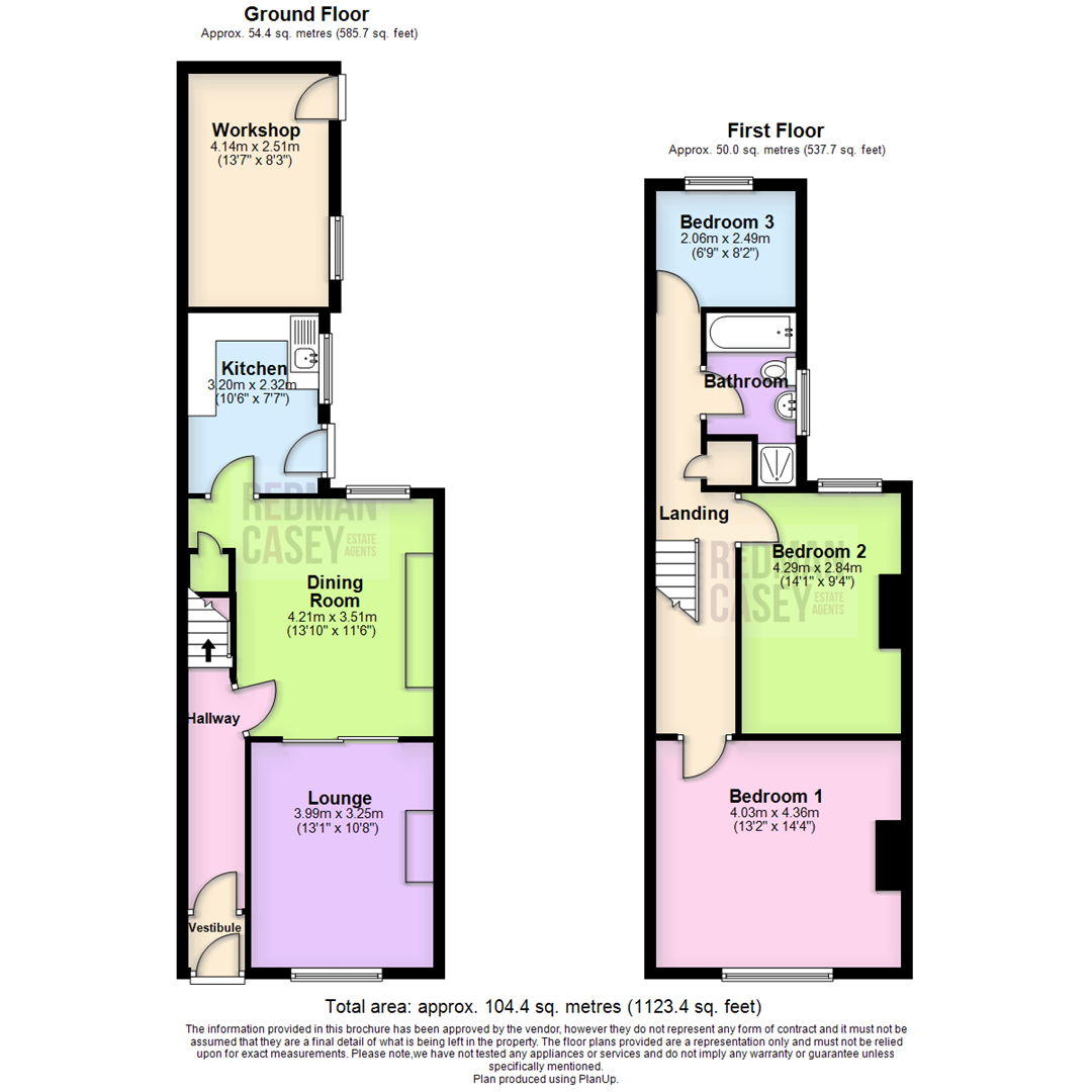
Vestibule
Ceramic tiled flooring, half height ceramic tiling, door to:
Hallway
Radiator, coving to ceiling, stairs to first floor landing, door to:
Dining Room (4.21m x 3.51m (13'10" x 11'6"))
UPVC double glazed window to rear, fireplace, built-in under-stairs storage cupboard, double radiator, dado rail, coving to ceiling, sliding door, door to:
Lounge (3.99m x 3.25m (13'1" x 10'8"))
UPVC double glazed window to front, decorative living flame effect electric fire set in feature Adam style surround and marble effect inset and hearth, radiator, dado rail, two wall lights, coving to ceiling.
Kitchen (3.20m x 2.32m (10'6" x 7'7"))
Fitted with a matching range of white base and eye level units with underlighting, drawers and cornice trims, stainless steel sink with single drainer and mixer tap, plumbing for, vent for tumble dryer, space for fridge/freezer, gas point for cooker, uPVC double glazed window to side, radiator, double glazed door to rear, door to:
Landing
Built-in storage cupboard, radiator, door to:
Bedroom 1 (4.03m x 4.36m (13'3" x 14'4"))
UPVC double glazed leaded window to front, fitted bedroom suite with a range of wardrobes comprising built-in triple with full-length sliding doors, hanging rail and shelving, radiator.
Bedroom 2 (4.29m x 2.84m (14'1" x 9'4"))
UPVC double glazed window to rear, built-in triple wardrobe(s) with hanging rails and shelving, radiator.
Bathroom
Fitted with four piece white suite comprising deep panelled bath, inset wash hand basin in vanity unit with cupboards under and mixer tap, tiled shower enclosure and low-level WC, full height ceramic tiling to all walls, heated towel rail, extractor fan, uPVC frosted double glazed window to side, ceramic tiled flooring.
Bedroom 3 (2.06m x 2.49m (6'9" x 8'2"))
UPVC double glazed window to rear, built-in double wardrobe(s) with hanging rails and shelving, wall mounted gas heater.
Outside
Front garden, enclosed by dwarf stone wall to front and sides, paved pathway leading to front entrance door with slate chipping area and mature flower and shrub borders.
Rear, enclosed by timber fencing to rear and side, concrete hard standing and courtyard, rear gated access.
Workshop
UPVC double glazed window to side, double glazed entrance door.
Viewing & Disclaimer:
Please contact us on 01204 329990 OPT 1 if you wish to arrange a viewing appointment for this property, or require further information.
Redman Casey - BL6 endeavour to maintain accurate depictions of properties in Virtual Tours, Floor Plans and descriptions, however, these are intended only as a guide and purchasers must satisfy themselves by personal inspection.
